百姓厂房网   发布房源 求租求购
百姓厂房网   >      >   综改区企业总部基地!独栋厂办!大红本!税收优惠!
(编号:276470) 综改区企业总部基地!独栋厂办!大红本!税收优惠!
发布时间: 2022-04-02 13:44:57 房源状态: 出租中
  • 扫描该【房源】二维码
    查看该【房东】联系方式
  • 浏览
  • 浏览数:4144
    收藏数:0
所在区域: 太原 / 小店 建筑结构:
厂房面积: 1800 车辆出入:
出租价格: 820 万元 配电容量: KVA
办公面积: 可否分租:
空地面积: 是否独院:
所在楼层: 层      层高: 有无货梯:
具体位置: 小店-经济开发区-山西应用科技学院南门对面 
详细描述
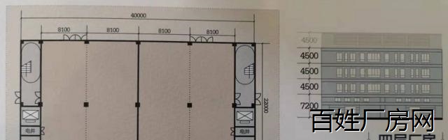
山西转型综改示范区 中小企业产业园 【项目名称】:中小企业产业园 【占地面积】:1000亩 【建筑面积】:100万㎡ 【国企钜献】:山西交控 【产品类型】:2~4层独栋办公楼/厂房,层高:首层7.2-7.8米,2层以上3.9-4.5米,大面积屋顶露台不计容(企业需求可定制) 【面积区间】:独栋800-4000㎡,园区景观绿化,首层大挑空 【区位优势】:位于综改区潇河产业园区,距太原武宿机场15KM、太原南站18KM,紧邻山西应用学院、太原“五大中心”商务区,产业氛围浓厚 【公交线路】:35路、303路、305路,313路等,同时园区将设立通勤大巴,直达地铁等交通接驳点。 【轨道交通】:太原地铁2号线南延R1磁悬浮(在建)。 【付款方式】:全款、按揭贷款、阶段分期 【配套政策】:返税政策、专精特新企业政策、人才补贴等 【配套设施】:车位、配套公寓楼、大型餐厅、一站式服务中心、咖啡厅、休闲运动场所、通勤大巴等。
【厂房图片】
【地图位置】
【本站点信息均来自转载网络或用户自行上传,其房源信息中陈述文字和内容未经本站证实,对其中全部或者部分内容、文字的真实性、完整性、及时性本站不作任何保证或承诺,信息仅作用户参考,并请自行核实相关内容,如有涉及信息侵犯,请联系我们立即删除。】
猜你查找
丙二类医药库招租50000平米双向月台手续全
临街厂房出租、独门独院、标准化车间
临街厂房出租,标准化车间+2层办公楼+宿舍+库房+停车
出租小店区田庄村马练营路库房厂房
太原云仓库房出租一件代发快递打包
© 2015-2025 百姓厂房网   -   浙ICP备18033986号-1    浙公网安备 33011002015824号    服务热线:13093751618     服务时间:8:30 - 21:30